top of page
03.jpg

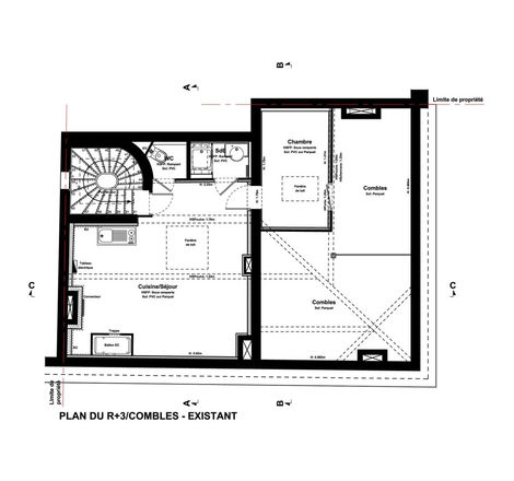
Immeuble Raze

2017

"Réhabilitation d'un immeuble entier avec un commerce en rez-de-chaussée et 3 appartements et crétion d'une terrasse tropezienne en combles"

Galerie d'images

Crédits : Photos : CHPOP Architecture

© 2023 par Chpop architecture. Créé avec Wix.com

bottom of page